Woonhuis Loverbosch
Sculpturale archetype woning Asten
Het beeldkwaliteitsplan voor de uitbreidingswijk Loverbosch in Asten ambieerde een archetype woning. Een woning in een zuivere ‘huisjes’ vorm. Dat betekend een stijl hellend dak, dakkapellen of dakvensters zijn ondergeschikt en een duidelijk leesbare kopgevel. Hierdoor ontstaat door de wijk samenhang in de massa’s van de woningen.
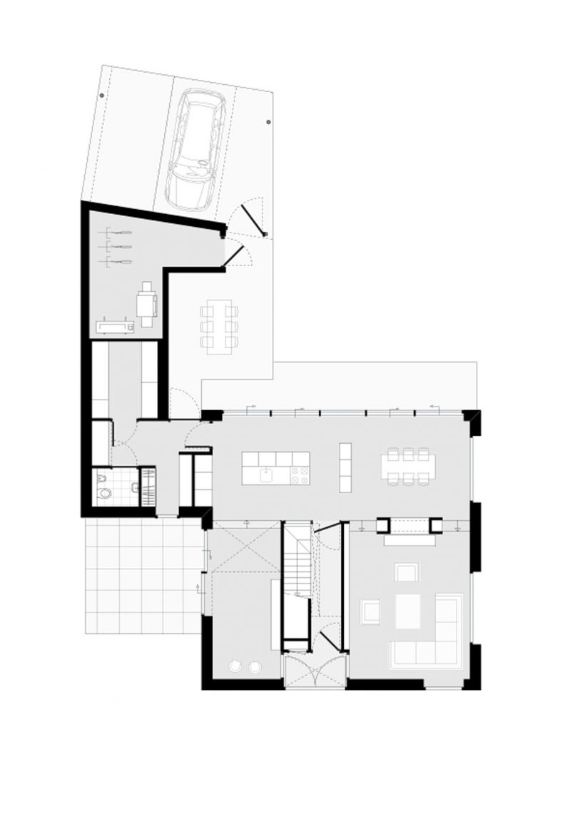
De ontworpen woning kenmerkt zich door haar sculpturale en archetype voorkomen. Dit komt onder andere tot uiting in de zwarte dominante kleurstelling en het stringente patroon van het zinken dakvlak in combinatie met de topgevels in diep zwarte Röben strengpers bakstenen. De gewenste secundaire functies zijn onder gebracht in het wit gepleisterde bijgebouw dat sterk contrasteert waardoor de vorm van het woonhuis verder versterkt wordt.
De spil van het huis is een centraal gelegen leegte met daarin het trappenhuis. Boven in het dak is ter plaatsen van deze centrale ruimte het dak volledig open gesneden waardoor het gevoel ontstaat dat de trap buiten staat. Vanuit deze centrale ruimte zijn alle vertrekken ontsloten. De verschillende niveaus worden door de trap opgevangen en dienen om de verschillende ruimtes een eigen karakter te geven. De speelkamer ligt verlaagd in een kuil met daarboven zwevend de werkkamer, de woonkamer veilig en verhoogd en vanuit de keuken loop je direct de achtertuin in.
Periode
- 2012-2014
Projectteam
- Dennis van de Rijdt
- Peter Verschuren
- Jiří Pokorný










