Hoofdkantoor VDG
Van Dijk Groep
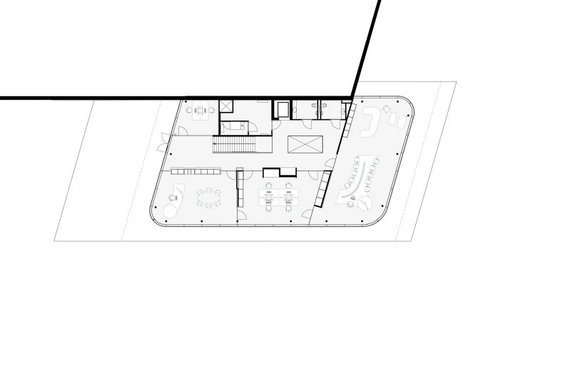
Gelegen aan de Noord-om bij de rotonde naar de Gemertse bedrijventerreinen Wolfsveld en Smartpark vormt het nieuwe kantoorpand voor VDG de toegangspoort tot dit gebied.
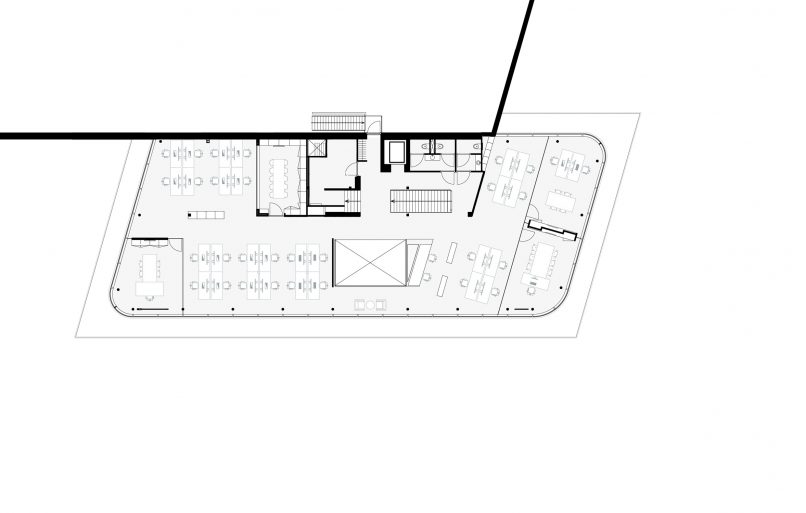
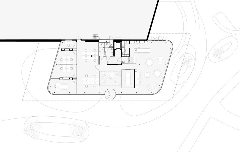
VDG bestaat uit met name bouw gerelateerde ondernemingen. Het hoofdkantoor bied ruimte aan De La Roy, specialist in maatwerk isolatie producten, bouwbedrijf Unibouw en VDG Real Estate. Het ontwerp en de distributie van functies wordt ingegeven door behoeftes en ambities vanuit deze ondernemingen. De La Roy bevindt zich op de begane grond direct bij de aangrenzende productiefaciliteit in de hal. De eerste verdieping is vergroot om Unibouw de ruimte te geven om in zijn geheel vanaf één laag te kunnen opereren. De tweede verdieping is de kleinste laag van de drie welke functioneert als een soort penthouse met ruimte voor VDG Real Estate.
Aan de Noordzijde van het pand bevindt zich de hoofdentree. Dit met als doel het collectieve gevoel van VDG te versterken. Medewerkers van de diverse bedrijven, directie, klanten en gasten worden allemaal via deze entree ontvangen. De achterliggende lobby en kantine zijn ontworpen om elkaar informeel te ontmoeten en kennis te delen.
De uitkragende luifels van het kantoor beschermen de volglazen gevels tegen de zon met als doel overmatige opwarming van de achterliggende kantoorruimtes te voorkomen. Tegelijkertijd versterken de luifels het panoramische uitzicht vanuit de kantoorruimtes over de provinciale weg en richting het bosgebied ten noorden van de kantoren. De afwerking aan boven en onderkant van de luifels is in kunstgras en thermisch gemodificeerd hout om de verbondenheid met de groene context kracht bij te zetten. De voorzijde van de luifels is voorzien van een geanodiseerde aluminium composiet welke als band in de productiehal doorloopt. Daar terugliggend uitgevoerd met exact dezelfde hoogte als de luifel. Hierdoor smelten kantoor en hal samen en vormen ze een geheel.
Periode
- 2017-2019
Projectteam
- Dennis van de Rijdt
- Peter Verschuren
- Leonique Winnen










