Tandartspraktijk Schoolstraat
Nieuwe functie voor oude jongensschool
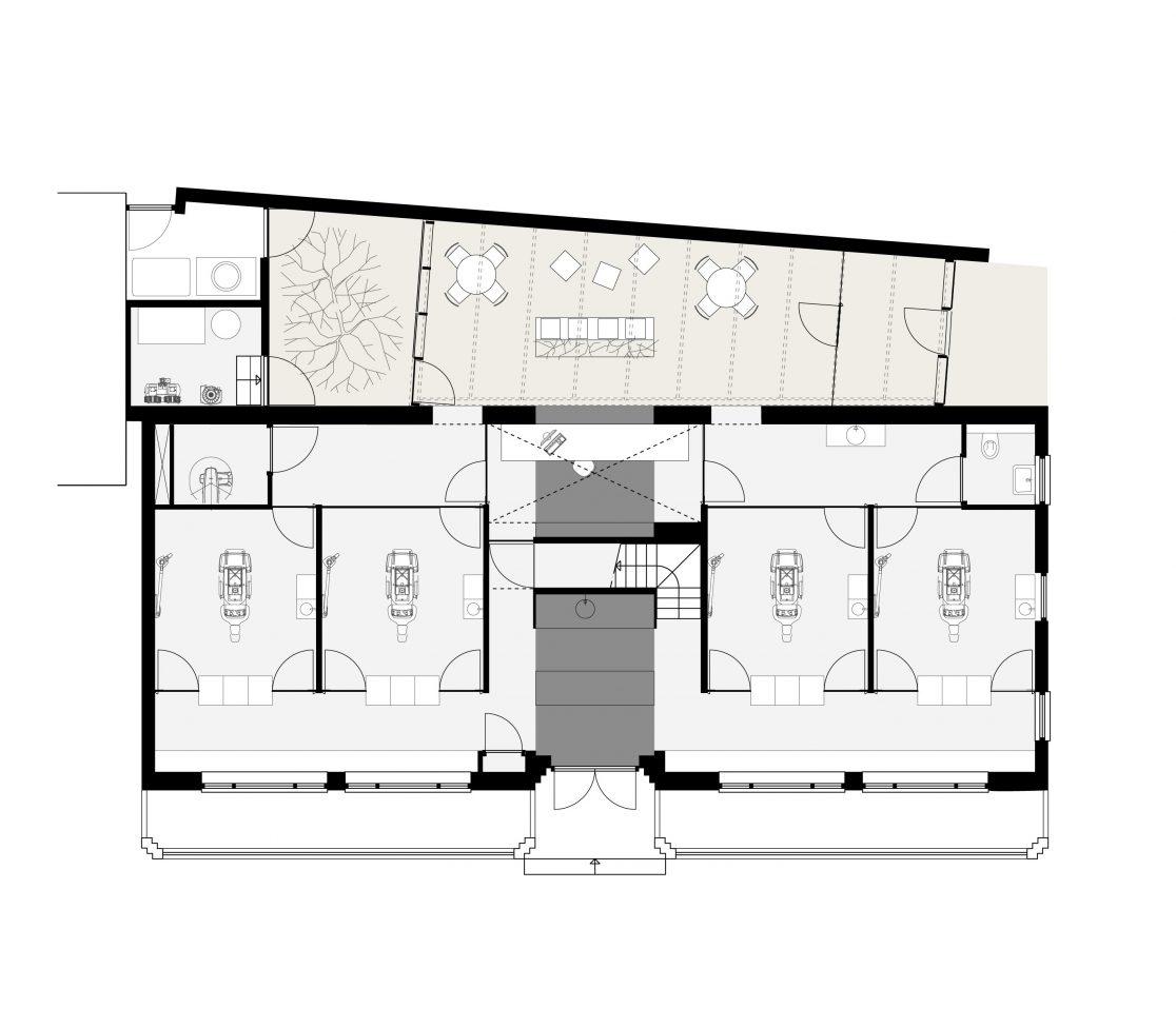
De opgave van dit project bestond uit het transformeren van een gemeentelijke monument in het Brabantse dorp Gemert naar een tandartspraktijk met vier behandelkamers. De belangrijkste vragen hierbij waren hoe de praktijk een entree en ontvangst te geven middels een nieuwe uitbreiding en hoe de dialoog te maken tussen de uitbreiding en de bestaande architectuur.
Het monument is het restant van de oude R.K. Jongensschool (1871-1977) en oorspronkelijk gebouwd als uitbreiding en nieuwe representatieve entree van de oude school. De overige bebouwing van de oude school is bij de aanleg van de Komweg afgebroken. In de tijd van de school werd de statige entreepartij aan de Schoolstraat gebruikt door personeel en schoolbezoek. De kinderen gingen via het schoolplein naar een toegang tussen de oorspronkelijke gebouwen, aan de achtergevel van het huidige monumentale pand.
Bij de transformatie tot tandartspraktijk is er gekozen om de gasten via dezelfde informele achterom het pand binnen te laten komen als vroeger de schoolkinderen. Hierbij is de uitbreiding aan de Komweg met entree en ontvangst opgevat als een buitenruimte. Een gemetselde schansmuur organiseert privacy voor de wachtende gasten en legt een ruimtelijke verbinding met de schansmuur van de naastgelegen voormalige rectorswoning. Een patio introduceert groen in de ontvangstruimte en versterkt het idee van een schansmuur waar achter een buitenruimte ligt. De glazenconstructie creëert het comfortabele binnenklimaat. En zorgt voor de transparante koppeling met het bestaande monument waardoor de gesloten oude achtergevel goed zichtbaar blijft. In de achtergevel zijn de oorspronkelijke openingen ingezet om tot de receptie en de behandelkamers te komen.
Het bestaande pand bestond uit een gang met links en rechts een leslokaal. Deze structuur is leesbaar gehouden door in de gang centrale functies als trap, receptie en sterilisatie te plaatsen. Ieder voormalig leslokaal is ingevuld met twee behandelkamers. De zolder is ingedeeld met kantoor, kantine en overige personeelsvoorzieningen. Het mooie ritme van de houten spanten is hier zichtbaar gehouden. Een vide zorgt voor extra lichtinval in de receptie en voor de gasten is zo bij ieder bezoek een glimp op te vangen van de kap.
De materialisatie van de nieuwe glazen uitbouw is opgebouwd uit blank geanodiseerde aluminium vliesgevel portalen. Het glazen dak is een taps toelopend hellend vlak waardoor ieder portaal en glasvlak anders van maat is. Aan de straatzijde is het hoogste punt van de vliesgevel en is de bovenlijn horizontaal gehouden. Hierdoor krijgt de uitbouw meer allure. De glas-op-glas aansluitingen en de rustgevende herhaling van de vliesgevel portalen dragen bij aan de transparantie van de wachtruimte.
Periode
- 2016-2017
 
Projectteam
- Dennis van de Rijdt
 - Peter Verschuren
 - Flavia Schenone
 - María Del Pilar Maldonado Viciana
 
		    















